Die Trend GmbH ist ein mittelständisches, inhabergeführtes Unternehmen und arbeitet nach der Philosophie "Konzipieren, bauen, betreuen". Unsere Kunden bekommen ganzheitliche Lösungen aus einer Hand. Die geschlossene Dienstleistungskette reicht vom maßgeschneiderten Konzept über die Planung und Fertigung bis hin zur schlüsselfertigen Erstellung und Übergabe.
Wir garantieren kurze Bauzeiten, denn die Vorfertigung der Wand- und Dachelemente im eigenen Werk beschleunigen den Montageprozess und erlauben eine zeitflexible Planung. Unsere Gewerbebauten sind in allen Energieklassen lieferbar (Kalt- und Warmhallen in allen U-Werten bis 0,85 Passivstandard) und wir verwirklichen in unseren Projekten alle Bauweisen: Holzfertigbau, Massiv-Holz-Wand, Thermo-Holz-Wand, Tafelbau.
Qualität und Preisgestaltung eines Gewerbebaus hängen im Wesentlichen vom Grad der Vorfertigung ab. Deshalb hat Trend Gewerbebau in die hoch technische Vorfertigung aller Bauteile investiert. Dadurch sind wir in der Lage, bautechnische Lösungen ständig zu optimieren. Wir setzen dabei Anlagen und Maschinen ein, die auf der Baustelle nicht zur Verfügung stehen. Unser hochwertiger, moderner Fertigungsverlauf und die punktgenaue Überwachung der einzelnen Produktionsschritte garantieren:
Die Trend Gewerbebau bietet eine einzigartige Vorfertigungsqualität und Aufbaupräzision. Kaum zu glauben, wie zum Teil riesige, vorgefertigte Holzfertigbauteile millimetergenau zu einem komplexen Gebäude zusammengefügt werden. Scheinbar schwerelos schweben Wände, Decken und andere Bauelemente per Kran zu ihrem Bestimmungsort. Ein perfekter Prozess, geleitet und überwacht von erfahrenen Fachleuten. Die Zimmerer und Holztechniker unseres Teams fügen passgenau zusammen, was vorher im Werk sorgfältig vorgefertigt wurde: Teamwork in seiner modernsten Form. Doch erst beim Aufbau auf der Baustelle zeigt sich, was Ihr Baupartner tatsächlich kann. Geschulte Fachleute können einen Holzbau in wenigen Tagen regendicht fertig stellen. Ein schlagender Beweis dafür, dass mit dem natürlichen Baustoff Holz auch Gewerbebauten perfekt, passgenau und gleichzeitig umweltbewusst zu realisieren sind.
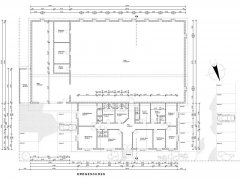
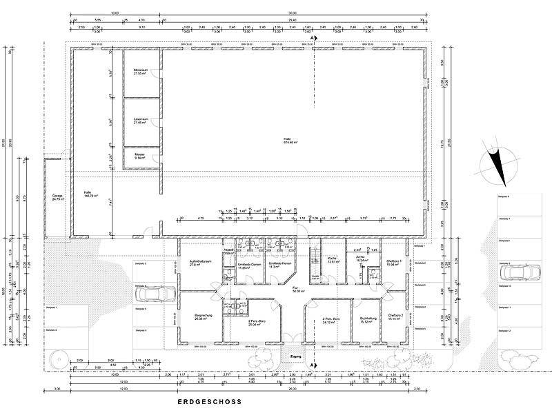
Die richtige und gute Planung ist die Voraussetzung für jeden Gewerbebau. Gut bauen heißt, dass ein Gebäude von innen nach außen erdacht, erfunden und geplant wird. Warum? Weil jedes Gebäude, in dem Menschen leben und arbeiten, zunächst einmal ein Raum für Körper, Geist und Seele ist. Oder anders ausgedrückt: ein Gewerbebau ist nur dann ein guter Gewerbebau, wenn Ihre Mitarbeiter sich in ihm wohlfühlen und dadurch bereit sind, Höchstleistungen für Ihr Unternehmen zu erbringen.
Bei der Planung des Grundrisses werden die ersten Weichen dafür gestellt. Die gemeinsame Planung mit Ihnen ist nichts anderes als der Austausch von Wissen und Wünschen. Sie wissen, welche Menschen mit welchen Tagesabläufen, Gewohnheiten und Gefühlen in das Gebäude einziehen werden und wir wissen, wie die entsprechenden Bedürfnisse effektiv und kostengünstig in einen gut organisierten Grundriss umgesetzt werden können.
UeberTrend
Wir planen und bauen für Sie Hallen, Büros und Häuser, in denen Menschen sich wohl fühlen sollen. Deshalb investieren wir gemeinsam mit Ihnen viel Zeit und Kreativität in die Planung - vom Grundrissentwurf bis hin zur Visualisierung. Wir nehmen uns Ihrer Wünsche an, egal, ob Sie architektonische Sonderwünsche hegen oder uns um eine Budgetplanung bitten. Wir versuchen alles, um Ihren Anforderungen sicher gerecht zu werden. Setzen Sie sich mit uns in Verbindung und testen Sie uns! ›Kontakt